projektleitung vorplanung, entwurfsplanung, genehmigungsplanung eines büro- und eines beherbergungsgebäudes für GRAFT architekten
In unmittelbarer Nähe des Berliner Ostkreuzes entsteht ein Zwillingsprojekt mit einer sich ergänzenden Mischung aus Büro- und Hospitality-Flächen: LYNX STAY und LYNX WORK. Geplant als Holz-Hybridbau vereint das Projekt heutige Anforderungen an modernes Arbeiten und Wohnen mit nachhaltiger Architektur.
Ein regelmäßiger Rhythmus aus Erkern bildet ein umlaufendes Fassadenrelief, das an allen Gebäudeecken den Eindruck übereinander gestapelter, raumbildender Volumen erweckt ineinander, ähnlich den traditionellen Holzverbindungen.
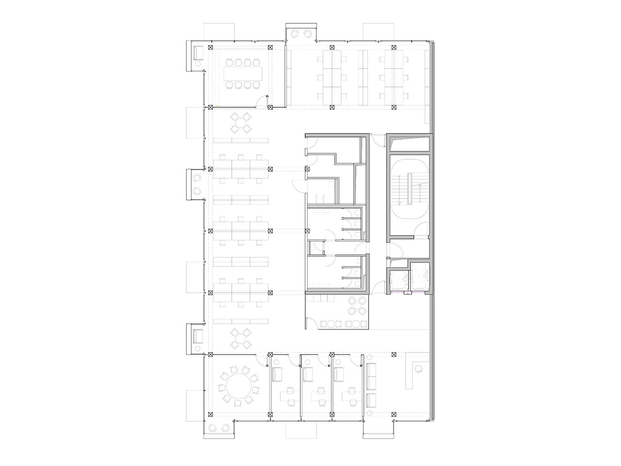
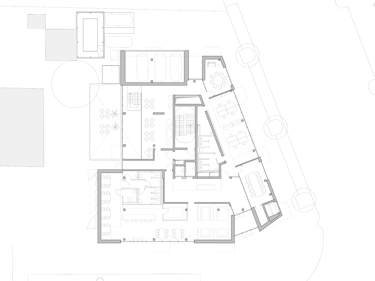
Beide Baukörper entstehen in Holz-Hybrid-Bauweise über einem Keller- und Sockelgeschoss in Stahlbetonweise. Sichtbare Holzoberflächen prägen auch die Innenräume, die sich über die zahlreichen Erker in den Stadtraum erweitern.
Zusätzlich zur Flexibilität und Veränderbarkeit der Grundrisse, wird die Fassade von innen nach außen erweitert, diese wird betretbar und als Grenze überwindbar. Zum Telefonieren, für eine Videokonferenz, ein schnelles informelles Meeting oder einfach als Break-out sind diese Ausbuchtungen ein idealer Ort und Kontrast zur offenen Raumlogik der Großraumbereiche.
Die Fassade entwickelt sich so von einer harten, undurchsichtigen Schutzschicht zur lebendigen Gebäudehülle.
Der Standort bietet ein breites Spektrum an Freizeit- und Kulturangeboten in einer grünen, lebendigen Nachbarschaft, in der man gerne arbeitet und lebt. Die Infrastruktur der Gebäude wird ergänzt durch ein Café im Erdgeschoss, großzügige Foyers und innenliegende Höfe, die Licht in die unteren Etagen bringen. Dachterrassen auf beiden Gebäuden laden überdies zum Entspannen und für Community-Angebote ein.
