konzept für den innenausbau eines apartments
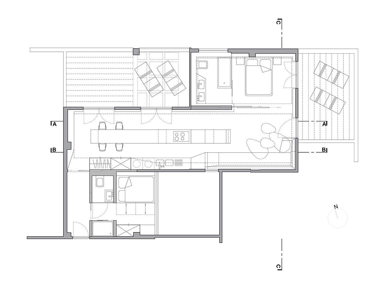
Für ein traditionelles Apartment im Stadtviertel Foners in Palma de Mallorca wurde ein Konzept für einen komplett neuen Innenausbau entwickelt. Die klassische Aufteilung von an einem Flur gelegenen Zimmern wurde aufgebrochen und stattdessen ein langgestreckter, zentraler Wohn- und Essbereich geschaffen, der damit an beide Terrassen anbindet und Lichteinfall und Blickbezüge über diese wie auch Zugang zu diesen ermöglicht. Das angrenzende und ebenfalls mit der östlichen Terrasse verbundene Schlafzimmer ist über eine Glasschiebewand vom Wohnraum abgetrennt, sodass eine großzügige Raumfolge entsteht. Das Bad wiederum hat eine offene Verbindung zum Schlafzimmer. Gewünschter Sichtschutz wird durch Vorhänge gewährleistet. Vom Eingangskorridor aus ist ein abgetrenntes Gästezimmer mit eigenem Bad erreichbar, das zu einem Lichthof hin orientiert ist.
Der zentrale Wohnraum ist durch eine weiße, skulpturale Figur geprägt, die alle Funktionen integriert: Küche und Kochinsel mit Abzugshaube, Esstisch, Sofalandschaft sowie direkte und indirekte Beleuchtung. So entsteht ein kontinuierlich gefasster Raum mit vielfältigen Perspektiven, der eine zeitgemässe, mediterrane Atmosphäre schafft. Diese Atmosphäre wird unterstützt durch die umlaufende sonnengelbe Farbgebung der Wand, die mit dem Ausblick auf den blauen Himmel über Mallorca kontrastiert. Die umlaufende indirekte Beleuchtung wird durch Spots sowie eine Lichtskulptur ergänzt.
